Back to home
Hajjency

Gallery ยท August 2025

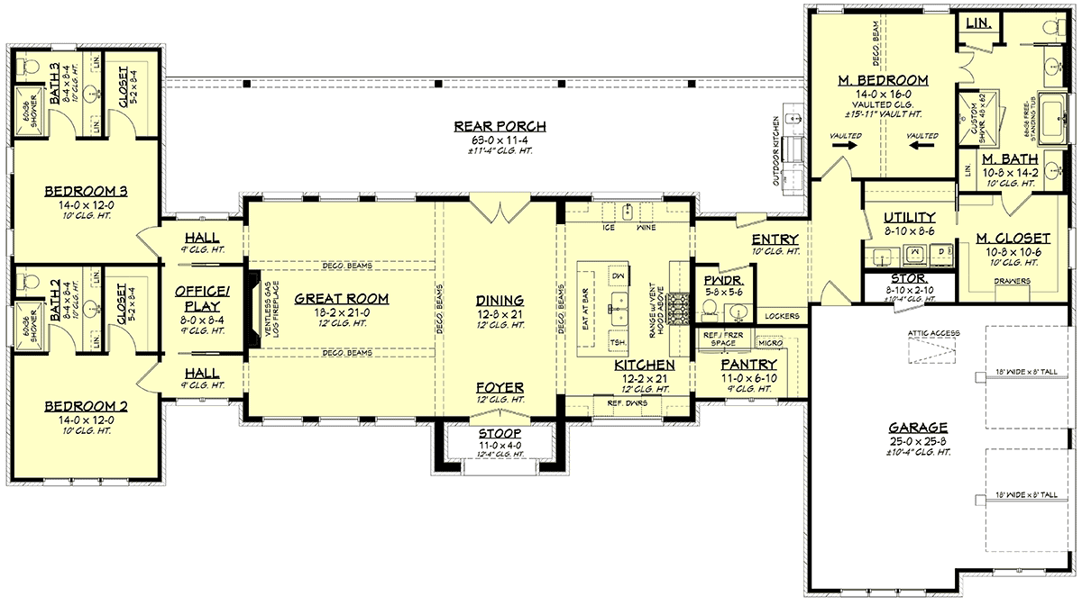
Open Floor Ranch House Designs

Open Floor Ranch House Designs What Makes a Ranch House Floor Plan a Great Choice

77 images
Slug: /2025-08/open-floor-ranch-house-designs
Source: open-floor-ranch-house-designs.json
Open Floor Ranch House Designs

Discover more galleries